Lazio ▶
(RM) ▶
Roma
- VIA EFISIO CUGIA
IMMOBILE AGGIUDICATO
|
|
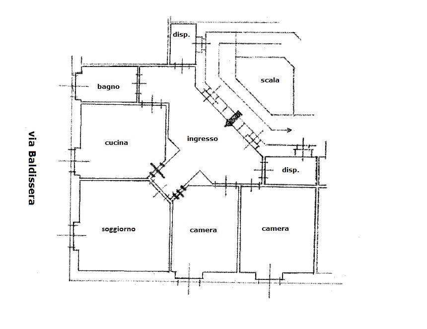
Nel quartiere Casal Bertone, proponiamo un appartamento di circa 104 mq catastali con affaccio angolare esterno sito al 5° piano di palazzo d'epoca con
ascensore.
Internamente l'appartamento è composto da un ingresso, un soggiorno, due camere, una cucina, un bagno e due ripostigli. Nelle adiacenze
dell'appartamento si trovano ogni genere di attività commerciali come un centro commerciale, diversi supermercati, ristoranti, bar ed altro ancora.
L'immobile risulta ottimamente collegato sia grazie al frequente passaggio di mezzi pubblici, sia grazie alla vicinanza alla Stazione Tiburtina.
L'appartamento è da ristrutturare.
Classe energetica: G
CARATTERISTICHE
|
|
| Stanze |
3 |
mq |
104 |
| Bagni |
1 |
Cantina |
no |
| Balcone |
no |
Terazzo |
no |
| Giardino |
no |
Posto auto |
no |
Stato: libero
dati catastali: fog.: 614, part.: 47, sub: 33, zona: 4, cat.: A/4, cons.: 5,5 vani, mq catastali: 104, classe: 2, rend. cat.: €681,72
|
|