Lazio ▶
(RM) ▶
Roma
- VIA EFISIO CUGIA
IMMOBILE AGGIUDICATO
|
|
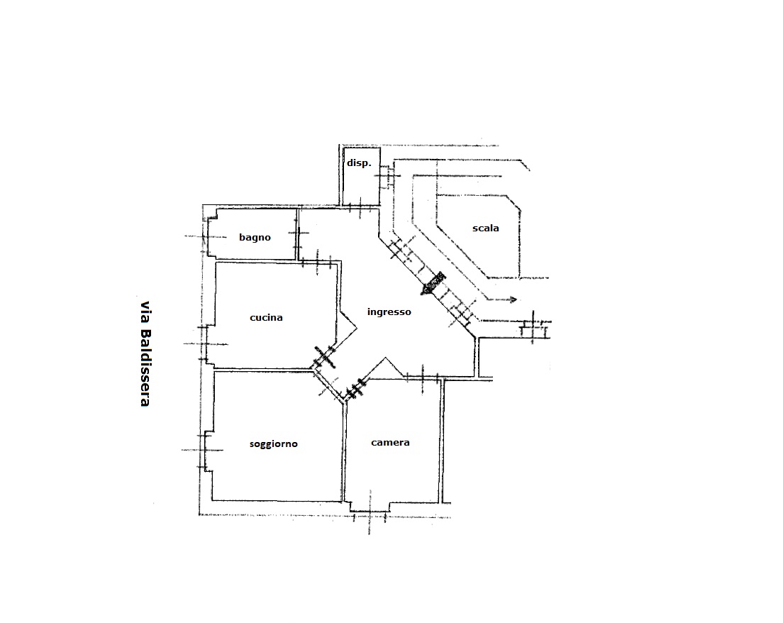
Nel VI Municipio di Roma, più precisamente in via Efisio Cugia, appartamento di circa 98 mq catastali con affaccio angolare esterno sito al 6° piano di
palazzo d'epoca con ascensore.
Internamente composto da un ingresso, un soggiorno, una camera, una cucina, un bagno ed un ripostiglio. Nelle adiacenze dell'appartamento si trovano
ogni genere di attività commerciali come un centro commerciale, diversi supermercati, ristoranti, bar, ed altro ancora. L'immobile risulta ottimamente
collegato sia grazie al frequente passaggio di mezzi pubblici, sia grazie alla vicinanza alla Stazione Tiburtina. L'appartamento è da ristrutturare.
Classe energetica: G
CARATTERISTICHE
|
|
| Stanze |
2 |
mq |
98 |
| Bagni |
1 |
Cantina |
no |
| Balcone |
no |
Terazzo |
no |
| Giardino |
no |
Posto auto |
no |
Stato: libero
dati catastali: fog.: 614, part.: 47, sub: 36, zona: 4, cat.: A/4, cons.: 5 vani, mq catastali: 98, classe: 2, rend. cat.: €619,75
|
|