Liguria ▶ (SV)Ortovero - BORGATA FASCEO

VENDUTO




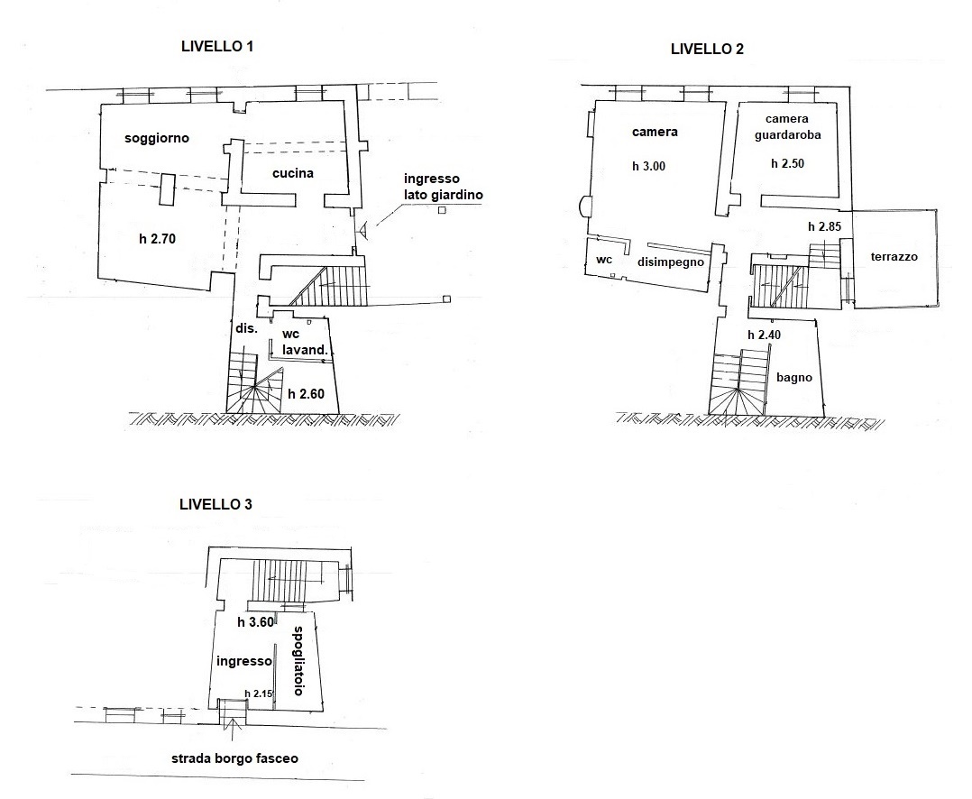
Nel comune di Ortovero in provincia di Savona, più precisamente in Borgata Fasceo, casa indipendente di circa 184 mq sviluppata su tre livelli lungo il pendio della collina. L'immobile è composto da un soggiorno con travi e travetti in legno a vista, tre camere da letto, cucina abitabile con camino, due bagni, due disimpegni ed un terrazzo. Il tutto si presenta in buone condizioni.
Unitamente alla casa viene venduto un terreno con cultura attuale ad uliveto di circa 635 mq.
Classe energetica: G


CARATTERISTICHE

Casa indipendente
Stanze 4 mq 184
Bagni 2 Cantina no
Balcone no Terazzo si
Giardino no Posto auto no
Stato: libero

dati catastali:
fog.: 11, part.: 94, sub: 4-5, cat.: A/4, cons.: vani 5,5, mq catastali: 153, classe: 1, rend. cat.: €241,44


Terreno
mq 635
Stato: libero

dati catastali:
fog.: 11, part.: 522, cat.: qualità  Uliveto, cons.: mq 635, classe: 2, Reddito Dominicale: €1,80